三综合试验箱需要满足的标准和验收依据
作者:zoey编辑:瑞凯仪器来源:www.riukai.cn发布时间:2020-09-21 09:09:00
三综合试验箱主要功能
1、三综合试验箱模拟GB/T10586- 2006湿热试验箱技术条件、GB/T10589- -2008低温试验箱等技术条件; GB/T11158- -2008高温试验箱技术条件制造,主要为航天、航空、石油、化工、军事、汽车(摩托车)、船舶、电子、通讯等科研及生产单位提供温湿度变化环境,模拟试品在温湿度变化环境条件下加载模拟振动的适应性试验及对电子元器件的安全性测试提供可靠性试验、产品筛选等。
三综合试验箱适用于对产品(整机)、零部件、材料进行高温、低温、高低温循环试验,以及恒定湿热和交变湿热试验。
2、振动与冲击
所有设备及其部件应能承受使用时的冲击和振动而无损坏和失效;所有设备及其部件应能承受运输与安装时的冲击和振动而无损坏和失效。
3、可靠性要求
橡胶件(密封垫、密封条)能在本试验箱极限温度长时间工作条件下保持物理性能;冷却系统管路焊接、密封可靠,不产生漏气、漏水、漏油现象;试验箱与振动台接口处不漏水、周边不凝霜;设备所有电器元件的质量等级不低于工业级标准;设备满足连续工作30天,其各项性能指标均能达到技术要求。
三综合试验箱主要组成
箱体(含振动台接口)、电动轨道(含振动台接口)、制冷系统、加热系统、加湿系统、除湿系统、电气控制系统、防凝露装置等,以及在本技术规格中未提及的、但为确保该系统正常、稳定、长期、安全、可靠运行所必须的其它配套设施。
三综合试验箱主要技术参数
型号:R-ZTH系列
箱体尺寸及工作尺寸:按需定制
温度范围:-50℃~+130℃
温度波动度:≤士0.5℃
温度均匀度:≤士2℃
温度偏差:≤士2℃
升温速率:-50℃到130℃,≤60min (100Kg铝锭,全程平均值)
降温速率:20C到-50℃,≤80min (100Kg 铝锭,全程平均值)
湿度偏差:≤士3%RH (>75%RH) ;≤土5%RH (≤75%RH)
湿度波动度:≤士2%RH
三综合试验箱满足标准:
GB10586- 2006湿热试验箱技术条件;
GB10592- -2008高、低温试验箱技术条件;
GB/T 2423. 1-2008电工电子产品基本环境试验规程试验A:低温试验方法;
GB/T 2423. 2- -2008电工电子产品基本环境试验规程试验B:高温试验方法;
GB/T2423.3-2006电工电子产品基本环境试验规程试验Cab:恒定湿热试验方法;
GB/T 2423. 4-2008电工电子产品环境试验第2部分:试验Db:交 变湿热;
GB/T5170. 1-2008电工电子产业环境试验设备检验方法总则;
GB/T5170.2-2008电工电子产业环境试验设备检验方法温度试验设备;
GB/T5170. 5- 2008电工电子产业环境试验设备检验方法湿度试验设备;
GB/T5170.18- -2005电工电子产业环境试验设备检验方法温度/湿度组合循环试验设备;
三综合试验箱验收方法及依据
GB/T5170. 19 -2005电工电子产业环境试验设备检验方法温度/振动(正弦)综合试验设备;
JJF1270-2010温度、湿度、振动综合环境试验系统校准规范;
JJF1101-2003环境试验设备温度、湿度校准规范。
辐射、污染、电磁:符合相关标准要求
噪音:≤80 dB
总功率:装机总功率约133 KW
温、湿度基本工作原理
智能化控制
采用自主研发“智能控制器”,综合试验箱环境情况(如温度)及试验箱内的试品工况,实现自动开启或关闭相应工作单元(如压缩机或电加热器等),从功能而达到各种温度的精确控制。
高温段
中央控制系统根据所采集到的箱内温度信号进行放大、模/数转换、非线性校正后与温度的设定值(目标值)进行比较,得出的偏差信号经PID运算,输出调节信号自动控制加热器的输出功率大小,使试验室内的加热和热散失达到一种动态平衡,最终达到恒温目的。
低温段
本设备采用先进的单级自复叠制冷技术,单台压缩机即可达到-70℃的低温。精馏型混合工质自复叠制冷技术采用单台普通商用压缩机,以多元混合工质作为制冷剂,实现最低-120℃的低温制冷,达到了传统复叠式采用三台压缩机的三级复叠制冷的效果。极大地简化了制冷系统的结构,降低了初投资成本,减小系统运行能耗,提高系统可靠性。制冷系统采用精馏的方法巧妙的完成了润滑油与混合工质的高效分离,保证系统在低温段不出现油堵问题。结构简单、运行稳定、能效高、便于小型化。
湿度
除湿:采用冷凝法进行除湿;
加湿:采用蒸汽加湿法加湿。
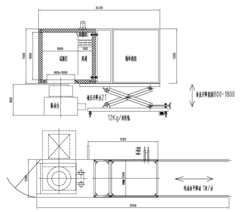
三综合试验箱箱体结构
采用升降台方式:前部工作室内壁连续焊接成密封,工作室底部为活动底板,配盲板及、水平振动接口板及垂直振动接口板各1块。振动接口板通过硅橡胶软膜与振动台软连接,可隔离振动,并具有密封和隔热功能;工作室内设有送风系统:送风电机、离心扇叶、加热器、加湿器、制冷及除湿蒸发器。后部为制冷机组系统和电器控制系统。以下为1立方三综合试验箱示意图。











客服微信